
PENTIUM® III XEON™ PROCESSOR AT 600 MHz to 1 GHz with 256KB L2 Cache
MECHANICAL SPECIFICATIONS
7.1 Weight
The maximum weight of a Pentium® III Xeon™ processor at 600 MHz+ and thermal solution is approximately
500 grams.
7.2 Cartridge to Connector Mating Details
The staggered edge connector layout of the Pentium III Xeon processor at 600 MHz+ makes the processor
susceptible to damage from cartridge insertion while power is applied to the connector. Extra care should be
taken to ensure that this does not occur. The electrical and mechanical integrity of the processor edge fingers
are specified for up to 50 insertion/extraction cycles.
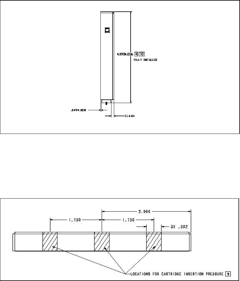
Figure 26. Side View of Connector Mating Details
NOTES:
4. Dimensional variation when cartridge is fully installed and the substrate is bottomed in the connector.
Actual system installed height and tolerance is subject to users manufacturing tolerance of SC330
connector to baseboard.
5. Retention devices for this cartridge must accommodate this cartridge “Float” relative to connector,
without preload to the edge contacts in “X” and “Y” axes. (see figure 22 for axis orientation)
10. Fully installed dimensions must be maintained by the user’s retention device. Cartridge backout from
fully installed position may not exceed 0.020.
Figure 27. Top View of Cartridge Insertion Pressure Points
Kommentare zu diesen Handbüchern